Taranaki Real Estate

powered by Open2view.com
SOLD

Taranaki & Wanganui
5
2
N/A
187sqm
4001sqm
Taranaki & Wanganui
proudly marketed by
Tall Poppy New Plymouth Ltd
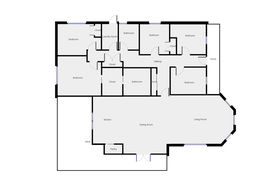
Villa with incredible views
Immerse yourself in panoramic scenery from your very own piece of paradise, perched upon 4001m2 of land, nestled between mountain and sea. This feature property is simply unsurpassed for location and lifestyle. Inside, this expansive home boasts five bedrooms, master with walk-in wardrobe and en suite including a bath. A well-appointed family bathroom, separate laundry room and a fabulous contemporary kitchen complete with all the bells and whistles. The open-plan kitchen/living/dining space features stunning timber floors. Off this fabulous open space flows a deck out to the incredible lake and mountain views. This 1900's home has virtually been rebuilt inside and out, whilst maintaining all its character. The lounge log burner, heat pump and a ventilation system combine to guarantee year-round comfort. This home offers ample storage, with ladder access into the ceiling cavity. The sun-drenched deck is a real highlight; a garden shed complements the triple garage and the spacious section ensures there's ample space for families and pets of all shapes and sizes. There are two fenced off paddocks, town trickle feed water, and a small shelter building in the front paddock. The location needs no talking up, with the property's close proximity to the bustling eateries, supermarkets and boutique shops of The Valley and Bell Block. Future development of the area looks exciting. Although surrounded by other premium homes this iconic villa stands out, and even the most discerning purchasers are sure to be impressed. With our vendors' thoughts already focused on the next chapter in their lives, a sale is imminent. This is a rare opportunity to secure a residence of genuine quality and substance. Interest is sure to be high and immediate action is advised - contact Kim Fever AREINZ today for further details. Ph 0224 304 114. Enquiries Over $875, 000. Viewing by appointment only.
Question
Please leave this field blank:
Upload by Grace Donnelly
New Plymouth & Taranaki
This property was photographed by